
У Ч TEHH DIM ЭКЗЕМПЛЯР 25.03 .2025 HocwobaT.A.
У Ч Т Е Х Н И К Э К З Е М П Л А Р 25.03.2025 HocwobaT.A.
| N^(p)N^{p} n//nn / n |
Данные Воздухоохлабителя 散热器数据 |
BOI7-3 |
| 1 |
Отводимые потери квт 可接受的损耗千瓦 |
140 |
| 2 |
Расход Воздуха M^(3)//c\mathrm{M}^{3} / \mathrm{c} 空气流量 M^(3)//c\mathrm{M}^{3} / \mathrm{c} |
4 |
| 3 |
Расход воды : m^(3)//4\mathrm{m}^{3} / 4 水量: m^(3)//4\mathrm{m}^{3} / 4 |
60 |
| 4 |
Температцра входящей воды, ^(@)C{ }^{\circ} \mathrm{C} 进水温度, ^(@)C{ }^{\circ} \mathrm{C} |
30 |
| 5 |
Температура охлажденного водуха, ^(0){ }^{0} C 冷却水温度, ^(0){ }^{0} 摄氏度 |
40 |
| 6 |
Рабочее дабление воды, МПа 工作压力,MPa |
0,3 |
| 7 |
Число ходоб боды 管路数量 |
4 |
| 8 |
Macca |
не болев 900 кг 不超过900 кг |
N^(p) n//n Данные Воздухоохлабителя BOI7-3
1 Отводимые потери квт 140
2 Расход Воздуха M^(3)//c 4
3 Расход воды : m^(3)//4 60
4 Температцра входящей воды, ^(@)C 30
5 Температура охлажденного водуха, ^(0) C 40
6 Рабочее дабление воды, МПа 0,3
7 Число ходоб боды 4
8 Macca не болев 900 кг| $N^{p}$ $n / n$ | Данные Воздухоохлабителя | BOI7-3 |
| :--- | :--- | :--- |
| 1 | Отводимые потери квт | 140 |
| 2 | Расход Воздуха $\mathrm{M}^{3} / \mathrm{c}$ | 4 |
| 3 | Расход воды : $\mathrm{m}^{3} / 4$ | 60 |
| 4 | Температцра входящей воды, ${ }^{\circ} \mathrm{C}$ | 30 |
| 5 | Температура охлажденного водуха, ${ }^{0}$ C | 40 |
| 6 | Рабочее дабление воды, МПа | 0,3 |
| 7 | Число ходоб боды | 4 |
| 8 | Macca | не болев 900 кг |

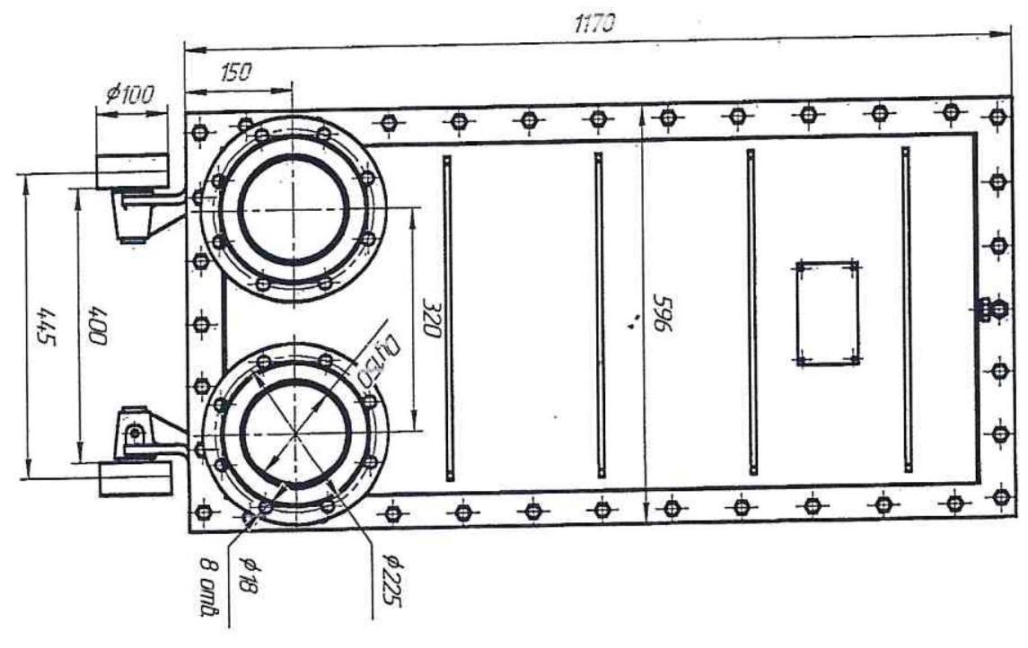
1 Негциая труба ф
19 xx119 \times 1 Л96 ГОСТ 617-90. 2 Оребрение тип ГБМ, аломиний АД1 ГОСТ 18475-73
1 非金属管 Ф 19 xx119 \times 1 Л96 ГОСТ 617-90. 2 翅片类型 ГБМ, 铝合金 АД1 ГОСТ 18475-73
З Количество трубок - 189 шт.
管子数量 - 189 根。
4 Доска трубіная торцебые крышкц рамы - Стз.
4 管板端盖框架板 - Стз。
5 Покрытие (кроме поверхности оребрения) наружных поберхностей: грунтобка Гф-021 красно-коричнебая эмаль Пф-115 черная: Внцтренних поберхностпей - грунтобка Гф-021 красно-коричнебая
5 涂层(除翅片表面外)外表面:红褐色漆 Гф-021 红褐色 Пф-115 黑色:内表面 - 漆 Гф-021 红褐色
